Myytävät kohteet Ähtäri ja lähikunnat
Omakotitalo, 99,0 m2
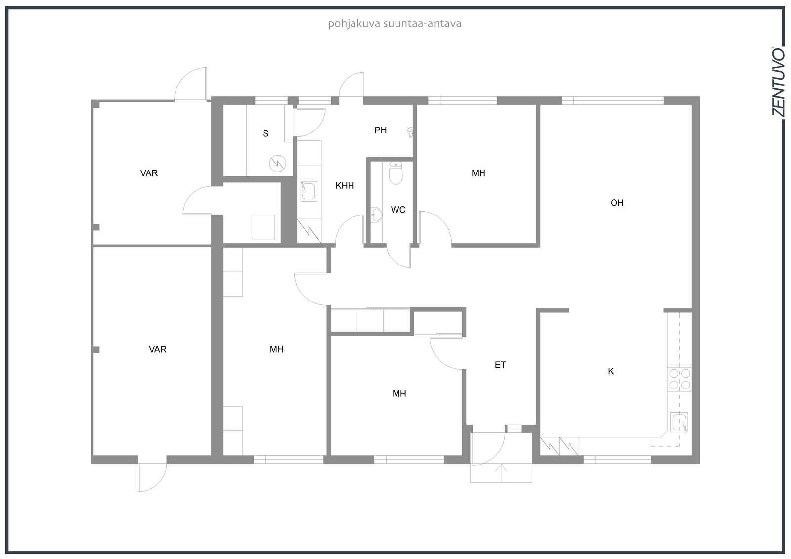
Oh+3 mh+k+s+ph/khh+wc
98 500,00 €
map Paulapolku 2, 63700 Ähtäri
my_location Katso sijainti kartalla
Sovi esittely, kohdetta välittää:
- Reija Kaskimäki
- Yrittäjä, LKV, YKV, julkinen kaupanvahvistaja
- mail_outlineLähetä sähköpostia
- smartphoneSoita 040 555 9182
Sovi esittely, kohdetta välittää:
- Reija Kaskimäki
- Yrittäjä, LKV, YKV, julkinen kaupanvahvistaja
- mail_outlineLähetä sähköpostia
- smartphoneSoita 040 555 9182
Paulapolku 2, Ähtäri, Törön asuntoalue
Myynnissä kaunis ja remontoitu omakotitalo Törön alueella Ähtärin keskustassa. Talo on rakennettu 1977. Vuosina 2012-2014 tehdyn kattavan remontin jälkeen talo on sisätiloiltaan kuin uusi. Remontin yhteydessä tilajärjestystä on jonkin verran muutettu, mikä on tehnyt talosta avaramman ja tiloiltaan hyvin toimivan.
Olohuone ja keittiö ovat avointa tilaa ja keittiössä on silti runsaasti kaappitilaa. Tuulikaappi on purettu pois, mikä tekee myös eteisestä avaramman. Pesuhuoneen / kodinhoitohuoneen, saunan ja wc:n alueelta on lattiat purettu ja asennettu vesikiertoinen lattialämmitys. Tilajärjestys on samalla muutettu avarammaksi purkamalla vanha vaatehuone pois. Kaikki sisäseinät on uusittu ja lattiat tasoitettu. Takapihalla on iso terassi oleskeluun. Terassilla oleva kylpytynnyri ja katettu paviljonki sisältyvät kauppaan. Talon toisessa päädyssä on tekninen tila ja varastotilat. Vuonna 2005 pihaan on rakennettu autokatos. Kuntotarkastus on tehty 12/2025. Talossa ei havaittu normaalista poikkeavia kosteuksia eikä merkittäviä remonttitarpeita.
Lämmityksenä on vesikeskuslämmitys patterein, pesutiloissa ja wc:ssä vesikiertoinen lattialämmitys. Lämmönlähteenä on pelletti tai sähkö. Lämmitystä on mahdollista ohjata älykotijärjestelmällä, joka hoitaa automaattisesti valinnan aina edullsemman vaihtoehdon välillä. Eteiseen on asennettu huonekohtainen ilmanvaihtokone lämmön talteenotolla, yhdessä makuuhuoneessa lisäksi Mobair -puhallin ja wc:ssä sekä pesuhuoneessa on poistoilmapuhaltimet. Kauppaan sisältyy robottiruohonleikkuri. Kiinteistöllä on myös valokuituliittymä.
Talo sijaitsee kulmatontilla. Tiheä kuusiaita tuo pihaan suojaa. Uuteen yhtenäiskouluun on lyhyt matka ja myös terveyspalvelut on lähellä. Ähtäristä löytyy runsaasti liikuntatiloja ja -paikkoja mm. melko uusi liikuntahalli, uusi uimahalli, tekonurmikenttä, uusi pesäpallostadion ja Mustikkavuoren upeat liikuntamaastot.
Jos kiinnostuit, niin varaa aika henkilökohtaiseen esittelyyn:
Reija Kaskimäki, LKV, YKV
julkinen kaupanvahvistaja
040 555 9182
Olohuone ja keittiö ovat avointa tilaa ja keittiössä on silti runsaasti kaappitilaa. Tuulikaappi on purettu pois, mikä tekee myös eteisestä avaramman. Pesuhuoneen / kodinhoitohuoneen, saunan ja wc:n alueelta on lattiat purettu ja asennettu vesikiertoinen lattialämmitys. Tilajärjestys on samalla muutettu avarammaksi purkamalla vanha vaatehuone pois. Kaikki sisäseinät on uusittu ja lattiat tasoitettu. Takapihalla on iso terassi oleskeluun. Terassilla oleva kylpytynnyri ja katettu paviljonki sisältyvät kauppaan. Talon toisessa päädyssä on tekninen tila ja varastotilat. Vuonna 2005 pihaan on rakennettu autokatos. Kuntotarkastus on tehty 12/2025. Talossa ei havaittu normaalista poikkeavia kosteuksia eikä merkittäviä remonttitarpeita.
Lämmityksenä on vesikeskuslämmitys patterein, pesutiloissa ja wc:ssä vesikiertoinen lattialämmitys. Lämmönlähteenä on pelletti tai sähkö. Lämmitystä on mahdollista ohjata älykotijärjestelmällä, joka hoitaa automaattisesti valinnan aina edullsemman vaihtoehdon välillä. Eteiseen on asennettu huonekohtainen ilmanvaihtokone lämmön talteenotolla, yhdessä makuuhuoneessa lisäksi Mobair -puhallin ja wc:ssä sekä pesuhuoneessa on poistoilmapuhaltimet. Kauppaan sisältyy robottiruohonleikkuri. Kiinteistöllä on myös valokuituliittymä.
Talo sijaitsee kulmatontilla. Tiheä kuusiaita tuo pihaan suojaa. Uuteen yhtenäiskouluun on lyhyt matka ja myös terveyspalvelut on lähellä. Ähtäristä löytyy runsaasti liikuntatiloja ja -paikkoja mm. melko uusi liikuntahalli, uusi uimahalli, tekonurmikenttä, uusi pesäpallostadion ja Mustikkavuoren upeat liikuntamaastot.
Jos kiinnostuit, niin varaa aika henkilökohtaiseen esittelyyn:
Reija Kaskimäki, LKV, YKV
julkinen kaupanvahvistaja
040 555 9182
Perustiedot
| Kohdenumero | 21698888 |
| Sijainti | Ähtäri, Törön asuntoalue Paulapolku 2 |
| Tyyppi | Omakotitalo |
| Huoneistoselitelmä | Oh+3 mh+k+s+ph/khh+wc |
| Huoneiden lukumäärä | 4 |
| Makuuhuoneiden lukumäärä | 3 |
| Sauna | Oma sauna |
| Parveke | Ei |
| Asuinpinta-ala | 99,0 m2 |
| Muut tilat | 30,0 m2 |
| Kokonaispinta-ala | 129,0 m2 |
| Lisätietoja pinta-alasta | Rakennusala noin 140 m2. Asuinalan lisäksi varastotilaa ja lämmityshuone. Lisäksi autokatos. Pinta-aloja ei ole tarkistusmitattu ja ne saattavat olla ilmoitettua pienemmät tai suuremmat. |
| Muut rakennukset | Autokatos |
| Yleiskunto | Hyvä |
| Kerros | 1 / 1 |
| Rakennusvuosi | 1977 |
| Käyttöönottovuosi | 1977 |
| Tehdyt korjaukset ja remontit | 2012-2014 kaikki lattiapinnat purettu, lattiat tasoitettu ja ja pintamateriaalit uusittu, sisäseinät uusittu, vaatehuone purettu pois, vaatehuoneen, wc:n, pesuhuoneen ja saunan lattiat avattu ja asennettu vesikiertoinen lattialämmitys. Pinnat ja kalusteet uusittu. Tuulikaappi purettu pois, keittiön sisäänkäynti muutettu, kaikki keittiökaapistot ja kodinkoneet uusittu. Vesikate uusittu. 2013 yläpohjaan lisätty lämmöneristettä. Takapihalle tehty terassi. Sadevesiviemäröinti asennettu ja liitetty pihan kahdelle sivulle samaan aikaan tehtyyn pihan salaojitukseen. Sisälle uusittu kaikki sähkölaitteet ja sähkötaulu. 2014 etupihalle terassi. 2017 ilmalämpöpumppu 2020 lämmönjakohuoneessa ja lähiympäristössä ollut vesivahinko, jok akorjattu ja rakenteet kuivatettu tehdyn vahinkoraportin suositusten mukaisesti. 2021 tai 2022 asennettu eteiseen huonekohtainen ilmanvaihtokone. 2025 talo ja autokatos maalattu, talon katolle asennettu lumiesteet. |
| Vapautuu | Sopimuksen mukaan |
Hinta ja kustannukset
| Velaton hinta | 98 500,00 € |
| Myyntihinta | 98 500,00 € |
| Kiinteistövero | 197,00 euroa (vuosi 2025) |
| Lämmitys | 140 |
| Lisätietoja maksuista | Vuodessa kuluu noin 5000 kg pellettiä. Sähkönkulutus noin 5000 - 7000 kWh/ vuosi, mikäli lämmitys pelletillä. Sähkönkulutuksessa mukana sähköauton lataus. |
Tilat ja materiaalit
| Keittiön varustus | Jääkaappi ja pakastin: jääkaappi/pakastin Tasot: laminaatti Seinät: maalattu Lattia: muovi Muut varusteet: liesituuletin, astianpesukone, irralliset kaapistot, kiinteät valaisimet Liesi/uuni: keraaminen, erillisuuni |
| Olohuone | Seinät: maalattu, tapetti Lattia: laminaatti |
| Makuuhuone | Seinät: maalattu Lattia: laminaatti, vinyyli |
| Kylpyhuone | Varusteet: suihkuseinä, pesukoneliitäntä, lattialämmitys, suihku, kiinteät valaisimet, kylpyhuonekaapisto Seinät: kaakeli Lattia: laatta |
| Kodinhoitohuone | Kodinhoitohuone ja pesuhuone samaa tilaa |
| Erillinen WC | Peruskorjattu 2012 Lattia: laatta Varusteet: lattialämmitys, bidee-suihku Seinät: kaakeli Lukumäärä: 1 |
| Saunan kuvaus | Sauna peruskorjatuttu 2012 |
| Saunan kiuas | Sähkökiuas |
| Saunan pinnat | Seinät: kivi, puu Lattia: laatta |
| Säilytystilat | Talon päädyssä varasto. |
| Muut huoneet | Eteinen, Pannuhuone, Terassi |
Lisätiedot
| Yleiskunto | Talossa tehty laaja remontti vuosina 2012-2014. |
| Lämmitysjärjestelmä | Hyvässä - tyydyttävässä kunnossa |
| Internet | Valokuitu |
| Kiinteistötunnus | 989-406-6-131 |
| Tontin omistus | Oma |
| Tontin pinta-ala | 861,0 m2 |
| Rakennusmateriaali | Puu Puurunko, lautavuoraus |
| Perustus | Maanvarainen betonilaatta |
| Katto | Tyyppi: Harjakatto Kate: Profiilipeltikate Kunto: Hyvä, uusittu 2012 tai 2013 |
| Viemäri | Kunnan |
| Vesi | Kunnan |
| Ilmanvaihto | Eteisessä ilmanvaihtokone lämmön talteenotolla. Wc:ssä ja pesuhuoneessa Pax passad -poistoilmapuhaltimet. Yhdessä makuuhuoneessa Mobair -puhallin. |
| Energiatodistus | On |
| Energialuokka | Voimassa 27.4.2035 saakka. |
| Energialuokka | C2018 |
| Kaavoitus | Asemakaava, Yleiskaava |
| Lisätietoja kaavoituksesta | Ähtärin kaupunki / kaavoitus 06 2525 6000 |
| Muuta kauppaan kuuluvaa | Kaapistot, sälekaihtimet/rullaverhot, verhotangot, kiinteät valaisimet, ilmalämpöpumppu, jätesäiliö |
| Viat ja vahingot | Vesivahinko: ei Kosteusvahinko: ei Home-/mikrobi- tai muita sisäilmaongelmia: ei Muita erityisiä ongelmia: ei |
| Lisätietoja | Tie perille, sähköliittymä siirtyy. Muita siirtyviä liittymiä: Valokuituliittymä |
Välitysliike
| Yhteystiedot |
Asuntokamari LKV Oy Ostolantie 12, 63700 Ähtäri reija.kaskimaki@asuntokamari.fi |
infoTäydelliset kohdetiedot saat tilaamalla myyntiesitteen, ota yhteyttä välittäjään.
Sovi esittely, kohdetta välittää:
- Reija Kaskimäki
- Yrittäjä, LKV, YKV, julkinen kaupanvahvistaja
- mail_outlineLähetä sähköpostia
- smartphoneSoita 040 555 9182
- Omakotitalo, 99 m2
- Oh+3 mh+k+s+ph/khh+wc
- map Paulapolku 2, 63700 Ähtäri
- my_location Katso sijainti kartalla
